Eladó ház - Délegyháza

Felújításra szorul!
Felújításra szorul
KAPCSOLAT
Gere Géza


+36 70 558

hesu52@

Az időpont kérés naptár ikonja
IDŐPONTOT KÉREK
A visszahívás kérés telefon ikonja egy azt körbe ölelő nyíllal
VISSZAHÍVÁST KÉREK
Ajánlom egy ismerősömnek ikon
AJÁNLOM EGY ISMERŐSÖMNEK
Facebook megosztás ikon
MEGOSZTÁS

KAPCSOLATFELVÉTEL

Küldés

Az üzenetet sikeresen elküldtük!
Hiba történt!
INGATLAN ADATAI

Ingatlan jellege

családi ház

Belső terület

50 m²

Telek terület

336 m²

Tájolás

délkelet

Panoráma

nincs

Építési állapot

használt

Építési mód

tégla

Szobák száma

1+1 félszoba

Szobák elhelyezkedése

egybenyílóak

Terasz

14 m²

Épület szintje

1.

Épült

1979

Ingatlan állapot

kívül: felújítandó
belül: felújítandó

Ablak szerkezete

hagyományos

Fűtés

cirko

Komfort

komfort

Közműállapot

csatorna: bekötve
gáz: bekötve
villany: bekötve
víz: bekötve

Energetika

nincs megadva

Az időpont kérés naptár ikonja
HTML
Az időpont kérés naptár ikonja
PDF
Eladó ház
Belső azonosító:
GG171
Ingatlan azonosító:
13567_bhv

Pest megye, Délegyháza, Fagyöngy

Irányár

35 M Ft + Áfa
(700 E Ft/㎡) + Áfa

Szobák

1+1 félszoba

Terület

50 m²

Telek terület

336 m²
INGATLAN LEÍRÁSA
Tóparthoz közeli lakóház Délegyházán – 80 méterre a víztől!

Délegyháza egyik kedvelt, csendes utcájában – a Fagyöngy utcában – eladásra kínálok egy 336 m²- s telken álló, 50 m²- s, másfél szobás családi házat, mindössze 80 méterre a horgásztótól.

Az ingatlan belterületi, kivett lakóház és udvar besorolású, per- és tehermentes, egyetlen tulajdonostól.

A ház a ’70-es évek végén téglából épült, jelenleg felújítandó állapotban van, így új tulajdonosa saját igényei szerint formálhatja.

Közművek: víz, villany, gáz, csatorna rendelkezésre állnak.

Az udvarban 3 autó számára is kényelmes parkolási lehetőség adott.

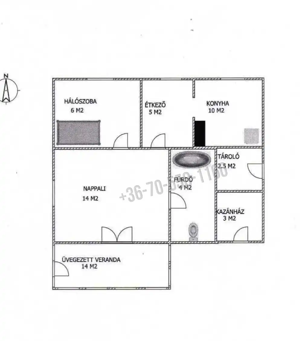
A belső tér elrendezése:

• üvegezett veranda,
• nappali (14 m²),
• hálószoba (6 m²),
• kádas fürdőszoba (4 m²),
• étkező (5 m²),
• konyha (10 m²),
• kazánház (3 m²) és tároló (2,5 m²).

A természet szerelmeseinek ideális választás — a háztól pár lépésre nagy kiterjedésű horgásztó, a közelben pedig a Kiskunsági Nemzeti Park, az Ócsai Tájvédelmi Körzet és a Ráckevei-Duna található.

Tökéletes otthon vagy nyaraló azoknak, akik a nyugalmat, a vízpart közelségét és a természetet keresik.

A környék igazi természeti kincs: tizenkét kavicsbánya-tó, a Kiskunsági Nemzeti Park és a Ráckevei-Duna közelsége varázslatos hangulatot teremt.

Ha egy helyet keresel, ahol lelassulhat az idő, ez az ingatlan tökéletes kiindulópont lehet álmaid otthonához.

Ár: 35. 000. 000 Ft

Érdeklődni: +36 70 558 1160

További szolgáltatások:

– Ingatlaneladásban segítség
– Energetikai tanúsítvány 72 órán belül
– Ingyenes hitelügyintézés
– Jogi háttér és földhivatali ügyintézés
– Országos adatbázisból e-mailes ajánlatküldés

INGATLAN ADATAI

Ingatlan jellege
családi ház
Belső terület
50 m²
Telek terület
336 m²
Tájolás
délkelet
Panoráma
nincs
Építési állapot
használt
Építési mód
tégla
Szobák száma
1+1 félszoba
Szobák elhelyezkedése
egybenyílóak
Terasz
14 m²
Épület szintje
1.
Épült
1979
Ingatlan állapot
kívül: felújítandó
belül: felújítandó
Ablak szerkezete
hagyományos
Fűtés
cirko
Komfort
komfort
Közműállapot
csatorna: bekötve
gáz: bekötve
villany: bekötve
víz: bekötve
Energetika
nincs megadva
TÉRKÉP

Pest megye, Délegyháza, Fagyöngy

KAPCSOLAT
Gere Géza
Gere Géza


+36 70 558 1160

hesu52@gmail.com

KAPCSOLAT
Gere Géza

+36 70 558

hesu52@

Az időpont kérés naptár ikonja
IDŐPONTOT KÉREK
A visszahívás kérés telefon ikonja egy azt körbe ölelő nyíllal
VISSZAHÍVÁST KÉREK
Ajánlom egy ismerősömnek ikon
AJÁNLOM EGY ISMERŐSÖMNEK
Facebook megosztás ikon
MEGOSZTÁS

KAPCSOLATFELVÉTEL

Küldés

Az üzenetet sikeresen elküldtük!
Hiba történt!
INGATLAN ADATAI

Ingatlan jellege

családi ház

Belső terület

50 m²

Telek terület

336 m²

Tájolás

délkelet

Panoráma

nincs

Építési állapot

használt

Építési mód

tégla

Szobák száma

1+1 félszoba

Szobák elhelyezkedése

egybenyílóak

Terasz

14 m²

Épület szintje

1.

Épült

1979

Ingatlan állapot

kívül: felújítandó
belül: felújítandó

Ablak szerkezete

hagyományos

Fűtés

cirko

Komfort

komfort

Közműállapot

csatorna: bekötve
gáz: bekötve
villany: bekötve
víz: bekötve

Energetika

nincs megadva

Az időpont kérés naptár ikonja
HTML
Az időpont kérés naptár ikonja
PDF
Pest megye - Délegyháza
Pest megye - Délegyháza
Pest megye - Délegyháza
Pest megye - Délegyháza
Pest megye - Délegyháza
Pest megye - Délegyháza
Pest megye - Délegyháza
Pest megye - Délegyháza
Pest megye - Délegyháza
Pest megye - Délegyháza
Pest megye - Délegyháza
Pest megye - Délegyháza
Pest megye - Délegyháza
Pest megye - Délegyháza
Pest megye - Délegyháza
Pest megye - Délegyháza
Pest megye - Délegyháza