KAPCSOLATFELVÉTEL
Ingatlan jellege
ikerház
Belső terület
240 m²
Telek terület
1000 m²
Tájolás
délnyugat
Építési állapot
használt
Építési mód
tégla
Szobák száma
7 szoba
Terasz
25 m²
Épület szintje
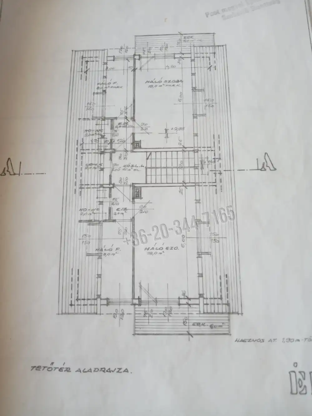
földszint + tetőteres.
Épült
1992
Ingatlan állapot
kívül: jó
belül: jó
Fűtés
gázkazán
Komfort
összkomfort
Parkolás
van, nem meghatározott
Közműállapot
csatorna: bekötve
gáz: bekötve
villany: bekötve
víz: bekötve
Energetika
nincs megadva
Pest megye, Nagymaros
Irányár
(500 E Ft/㎡)
Szobák
Emelet
Terület
Telek terület
A Dunakanyar egyik legszebb pontján, Nagymaros csendes, belterületi részén kínáljuk megvételre ezt a különleges, háromszintes, 240 m²-es panorámás ikerházat, amely minden részletében a tágas eleganciát és kényelmet sugározza.
Az ikerház vendégházként üzemelt, alkalmas lehet befektetési célokrai, vagy több generációs családiháznak.
Két helyrajzi számon szerepel, ezáltal külön is értékesítjük másik hirdetésben 65M/ ingatlan áron.
A 1000 m²-es gondozott telken álló ingatlan 1992-ben épült, 2,7 méteres belmagasságával, kiváló szerkezeti állapotával és lélegzetelállító dunai kilátással azonnal magával ragadja az ide érkezőt.
Az épületet átgondolt elrendezés és kényelmes térkapcsolatok jellemzik:
240 m² lakótér, 3 szint, 1000 m² telek, 4 nappali, 4 fürdő, 4 WC, 2 konyha, szauna, konditerem, merülőmedence, 2 nagy garázs és 4 erkély, ahonnan lélegzetelállító a kilátás!
Gázcirkó fűtés, riasztó, kamerarendszer, duplakomfortos megoldások.
Tökéletes családi otthon vagy akár befektetés a Dunakanyar egyik legszebb részén.
belül: jó
gáz: bekötve
villany: bekötve
víz: bekötve
Pest megye, Nagymaros

+36 20 344 7165
bh.hoffmanzoltan@gmail.com
KAPCSOLATFELVÉTEL
Ingatlan jellege
ikerház
Belső terület
240 m²
Telek terület
1000 m²
Tájolás
délnyugat
Építési állapot
használt
Építési mód
tégla
Szobák száma
7 szoba
Terasz
25 m²
Épület szintje
földszint + tetőteres.
Épült
1992
Ingatlan állapot
kívül: jó
belül: jó
Fűtés
gázkazán
Komfort
összkomfort
Parkolás
van, nem meghatározott
Közműállapot
csatorna: bekötve
gáz: bekötve
villany: bekötve
víz: bekötve
Energetika
nincs megadva